Speakerplans.com Homepage
Forum Home Forum Home > Plans > Plan Requests
  New Posts New Posts RSS Feed - Completed Usb plans available here!!
  FAQ FAQ  Forum Search   Events   Register Register  Login Login

Completed Usb plans available here!!

 Post Reply Post Reply Page  12>
Author
Message
hmaudio View Drop Down
Old Croc
Old Croc


Joined: 03 April 2009
Location: Nottingham
Status: Offline
Points: 3852
Post Options Post Options   Thanks (0) Thanks(0)   Quote hmaudio Quote  Post ReplyReply Direct Link To This Post Topic: Completed Usb plans available here!!
    Posted: 03 March 2014 at 7:42pm
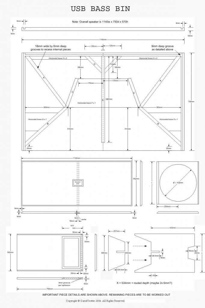
evening all! iv finally finished my new works shop and a pallet of birch just landed on my lap Wink first of all im gonna get building some USB's but iv searched high and low for plans and iv come up with f**k all so im going to do my own and put this plan to rest! This is for a pair of cabs so if you are only building one then just half it Smile This cut sheet is for a butt jointed build not rebated as on the plan. 



4: top/bot - 1140 x 750
4: sides - 534 x 750
2: back - 1104 x 534
4: A - 500 x 534  35 and 7 degrees 
4: B - 424 x 534  45 and 7 degrees 
4: C - 268 x 534  15 and 38 degrees 
4: D - 154 x 534  .45 degrees at both end
2: E - 680 x 534 work out angles from plan
2: F - 494 x 297 work out angles from plan 

here are the screen shots from maxcut, as good as maxcut is there a few things id change on these.. this is for 2 cabs and it works out at just over 3 and a half sheets that leaves you enough for batons or a one piece for the access panel and also off cuts for the smaller braces in the chamber. ignore the letters on these sheets!! the above letters are for the actual usb plans above. 


hope this helps Embarrassed

cheers
Adam


Edited by hmaudio - 04 March 2014 at 12:49am
Nottingham based cab builder. https://www.facebook.com/HMAudio-154352667920145/?ref=bookmarks
This account is used by 2 people.
Back to Top
Heathrow_B_line View Drop Down
Old Croc
Old Croc
Avatar

Joined: 11 January 2006
Location: United Kingdom
Status: Offline
Points: 7339
Post Options Post Options   Thanks (0) Thanks(0)   Quote Heathrow_B_line Quote  Post ReplyReply Direct Link To This Post Posted: 03 March 2014 at 7:51pm
why is the third sheet messed up?
Produce a killer sound. Take no prisoners.
Back to Top
bee View Drop Down
Old Croc
Old Croc
Avatar

Joined: 14 June 2011
Location: Middlesex
Status: Offline
Points: 4549
Post Options Post Options   Thanks (0) Thanks(0)   Quote bee Quote  Post ReplyReply Direct Link To This Post Posted: 03 March 2014 at 7:57pm
a usb with bracing works out at 2.3 sheets per cab, based on 2 cabs.... using maxcut, for a fully rebated version rebate depth 5mm
https://www.elements-audio.com
Back to Top
hmaudio View Drop Down
Old Croc
Old Croc


Joined: 03 April 2009
Location: Nottingham
Status: Offline
Points: 3852
Post Options Post Options   Thanks (0) Thanks(0)   Quote hmaudio Quote  Post ReplyReply Direct Link To This Post Posted: 03 March 2014 at 10:47pm
Edited

Edited by hmaudio - 03 March 2014 at 11:02pm
Nottingham based cab builder. https://www.facebook.com/HMAudio-154352667920145/?ref=bookmarks
This account is used by 2 people.
Back to Top
hmaudio View Drop Down
Old Croc
Old Croc


Joined: 03 April 2009
Location: Nottingham
Status: Offline
Points: 3852
Post Options Post Options   Thanks (0) Thanks(0)   Quote hmaudio Quote  Post ReplyReply Direct Link To This Post Posted: 03 March 2014 at 11:01pm
all edited and iv added all the bracing and its well under 4 sheets Big smile
Nottingham based cab builder. https://www.facebook.com/HMAudio-154352667920145/?ref=bookmarks
This account is used by 2 people.
Back to Top
bee View Drop Down
Old Croc
Old Croc
Avatar

Joined: 14 June 2011
Location: Middlesex
Status: Offline
Points: 4549
Post Options Post Options   Thanks (0) Thanks(0)   Quote bee Quote  Post ReplyReply Direct Link To This Post Posted: 03 March 2014 at 11:17pm
hm you doing the access panel from batten or a second side panel cut shorter at the front....
https://www.elements-audio.com
Back to Top
bee View Drop Down
Old Croc
Old Croc
Avatar

Joined: 14 June 2011
Location: Middlesex
Status: Offline
Points: 4549
Post Options Post Options   Thanks (0) Thanks(0)   Quote bee Quote  Post ReplyReply Direct Link To This Post Posted: 03 March 2014 at 11:19pm
if you use a 1 piece access panel then it will add 1/3rd of a sheet....
https://www.elements-audio.com
Back to Top
hmaudio View Drop Down
Old Croc
Old Croc


Joined: 03 April 2009
Location: Nottingham
Status: Offline
Points: 3852
Post Options Post Options   Thanks (0) Thanks(0)   Quote hmaudio Quote  Post ReplyReply Direct Link To This Post Posted: 03 March 2014 at 11:22pm
im gonna take the side panel and cut it in to 3 pieces and then putting battens underneath to catch the access panel. there is more than enough off cut left on the 4th sheet for batons 

Edited by hmaudio - 03 March 2014 at 11:25pm
Nottingham based cab builder. https://www.facebook.com/HMAudio-154352667920145/?ref=bookmarks
This account is used by 2 people.
Back to Top
bee View Drop Down
Old Croc
Old Croc
Avatar

Joined: 14 June 2011
Location: Middlesex
Status: Offline
Points: 4549
Post Options Post Options   Thanks (0) Thanks(0)   Quote bee Quote  Post ReplyReply Direct Link To This Post Posted: 03 March 2014 at 11:32pm
defo, I like tomake it from a one piece section, think it offers better protection from slight air leaks. The pressure on the accses panel is massive in this type of design. Its an easy mod to do. Can mark it on original plan if it helps....
https://www.elements-audio.com
Back to Top
hmaudio View Drop Down
Old Croc
Old Croc


Joined: 03 April 2009
Location: Nottingham
Status: Offline
Points: 3852
Post Options Post Options   Thanks (0) Thanks(0)   Quote hmaudio Quote  Post ReplyReply Direct Link To This Post Posted: 03 March 2014 at 11:44pm
you could add a full panel at 534 x 500 for a one piece panel and its still 4 sheets, what ever is easiest for the builder at the time Smile
Nottingham based cab builder. https://www.facebook.com/HMAudio-154352667920145/?ref=bookmarks
This account is used by 2 people.
Back to Top
Dub Specialist Sound View Drop Down
Old Croc
Old Croc
Avatar

Joined: 15 November 2013
Location: Smethwick
Status: Offline
Points: 4871
Post Options Post Options   Thanks (0) Thanks(0)   Quote Dub Specialist Sound Quote  Post ReplyReply Direct Link To This Post Posted: 04 March 2014 at 12:40am
I thought this is the ES-S18 no? its made me just read 25 pages in the, 

ES18-BPH in the advanced section..very interesting i must say


usb is a totally different cab? think im getting confused...
Musical Roots Reggae Vibration is Life! for music is sound...sound is vibration...vibration is energy... and energy begets life. Therein lies my passion!...MUSIC IS LIFE...
Back to Top
DMorison View Drop Down
Old Croc
Old Croc


Joined: 14 March 2007
Location: Aberdeen
Status: Offline
Points: 1740
Post Options Post Options   Thanks (0) Thanks(0)   Quote DMorison Quote  Post ReplyReply Direct Link To This Post Posted: 04 March 2014 at 12:36pm
Originally posted by Dub Specialist Sound Dub Specialist Sound wrote:

I thought this is the ES-S18 no? its made me just read 25 pages in the, 

ES18-BPH in the advanced section..very interesting i must say


usb is a totally different cab? think im getting confused...
 
Yes, the USB and the ES18-BPH have always been different cabs.
In as far as they both use bandpass-horn style loading, and 18" drivers, you could say they're a bit similar, but that's as far as the similarities go.
The most obvious difference is clearly that the USB is a double, bit hard to confuse that with the ES18 ;-)
Back to Top
 Post Reply Post Reply Page  12>

Forum Jump Forum Permissions View Drop Down

Forum Software by Web Wiz Forums® version 12.08
Copyright ©2001-2026 Web Wiz Ltd.