Speakerplans.com Homepage
Forum Home Forum Home > Plans > Scoops
  New Posts New Posts RSS Feed - what is a scoop anyway???
  FAQ FAQ  Forum Search   Events   Register Register  Login Login

what is a scoop anyway???

 Post Reply Post Reply Page  123>
Author
Message
moray james View Drop Down
Registered User
Registered User


Joined: 07 September 2005
Location: Canada
Status: Offline
Points: 141
Post Options Post Options   Thanks (0) Thanks(0)   Quote moray james Quote  Post ReplyReply Direct Link To This Post Topic: what is a scoop anyway???
    Posted: 13 December 2006 at 12:25pm
Perhaps Rog can answer this? Seems that if you are going to have a "Scoop" forum a deffination would be in order. I see people looking for a magic scoop box. But scoop bins can't be any different from other designs in that they need to be suited to the driver in question (the one you want to use/have). If specific design goals are established then you can work toward a better scoop and know if you have succeeded.
    I have not taken the time to measure and compare but there is a visual resemblance to a TAP Horn.  Even though a scoop has the driver positioned outside of the mouth there is still mutual coupling going on at the low end of things. So is a good scoop just one that behaves more like a TAP for the driver used? In other words is a good scoop one in which the driver gets loaded more effectively on both sides? Thanks Moray James.
moray james
Back to Top
moray james View Drop Down
Registered User
Registered User


Joined: 07 September 2005
Location: Canada
Status: Offline
Points: 141
Post Options Post Options   Thanks (0) Thanks(0)   Quote moray james Quote  Post ReplyReply Direct Link To This Post Posted: 13 December 2006 at 3:25pm
Found this information on line hope that this is of interest. Regards Moray James.
 
 

This type of horn enclosure was addressed by Harry F. Olson and others as early as 1936 [1] & [3]. Subsequently, a similar design was presented by James B. Lansing [5]. In Olson’s book, [2], [4] & [6], a recap of the design considerations may be found. Note that a two unit array of single driver scoop horns is acoustically equivalent to a scoop enclosure housing dual drivers.
Regards,
WHG

[1]
Title: Combination Horn and Direct Radiator Loudspeaker
Author: Harry F. Olson
Author: R. A. Hackley
Publication: IRE-P, Vol. 24, No. 12, p. 1557, 1936
Abstract: None

[2]
Title: Combination Horn and Direct Radiator Loudspeaker
Author: Harry F. Olson
Publication: Acoustical Engineering, D. Van Norstrand Co., May-1957, Sec. 6.15, p. 163-167
Abstract: Both freestanding and room corner variants of back loading bass horns are addressed here.
[3]
Title: A Compound Horn Loudspeaker
Author: Harry F. Olson
Author: Frank Massa
Publication: ASA-J, Vol. 8, No. 1, p. 48-52, (Jul-1936)
Abstract: A new type of loudspeaker is described in which a single mechanism is coupled to two horns: a straight axis high frequency horn and a folded low frequency horn. A theoretical analysis of the combined system is given and experimental data are shown which indicate smooth uniform response from 50 to 9000 cycles, and an efficiency of the order 50 percent over a large portion of this range.

[4]
Title: A Compound Horn Loudspeaker
Author: Harry F. Olson
Publication: Acoustical Engineering, D. Van Norstrand Co., May-1957, Sec.7.4.C, p. 237-238
Abstract: Brief description. acoustic model and example presented.

[5]
Title: ?
Author: James B. Lansing
Publication: SMPE-J, Vol. 46, No. 3, p. 212, 1946
Abstract: A back loading bass horn enclosure for placement in a room corner is presented. The design is a precursor to the original Hartsfield design.

[6]
Title: Acoustical Engineering
Publication: D. Van Nostrand Co., Inc. (1957)
Publication: Professional Audio Journals, Inc. (1991)
URL: http://www.audioxpress.com/bksprods/books/bkpa1.htm
Author: Harry F. Olson
Abstract: Comprehensive, but dated, text on the subject of acoustical engineering. Its reprinting at this late date says volumes about the value and significance of Olsen’s work. For those involved in this discipline, a copy of this book should be considered a necessary addition to their reference library.

Legend
IRE-P - Institute of Radio Engineers, Proceedings
SMPE-J - Society of Motion Picture Engineers
ASA-J - Acoustical Society of America, Journal
moray james
Back to Top
Tom Umney View Drop Down
Registered User
Registered User
Avatar

Joined: 26 February 2004
Location: United Kingdom
Status: Offline
Points: 4954
Post Options Post Options   Thanks (0) Thanks(0)   Quote Tom Umney Quote  Post ReplyReply Direct Link To This Post Posted: 15 December 2006 at 3:24pm
A scoop is a rear loaded horn and direct radiator basically.
 
 
Back to Top
moray james View Drop Down
Registered User
Registered User


Joined: 07 September 2005
Location: Canada
Status: Offline
Points: 141
Post Options Post Options   Thanks (0) Thanks(0)   Quote moray james Quote  Post ReplyReply Direct Link To This Post Posted: 15 December 2006 at 7:49pm
Tom: I understand that is the basic discription. If you look at a lot of scoop designs they would appear to have an average horn length of around 5-7 feet (15 - 18 inch drivers). That translates into 1/4 wave lengths of 55-40 Hz. Fs drivers which is around average with most older driver in this size range.  The Fs of newer drivers is a little lower. So back to the 1/4 WL, Tom Danleys TAP Horn is a 1/4 WL horn where the front side of the driver fires into the throat and the back side of the driver fires into the mouth.
   With a scoop box the face of the driver is usually forward firing but still in very close proximity to the horn mouth.  At frequencies close to driver Fs there will be mutual coupling between the driver's face and the mouth due to the length. While coupling is not as direct as when the driver is actually sitting in the mouth there will still be a load on the front of the driver presented by the mouth.
   I can't see any other reason to explain the bass performance of most scoops other than that given above. A straight 1/4 WL horn is is not efficient at low frequencies and horns in general don't get efficient until they reach 1/2 WL.  So if my assumption is wrong then what is the correct explaination for the bass performance of scoops? Regards Moray James.
moray james
Back to Top
jethrocker View Drop Down
Old Croc
Old Croc


Joined: 07 June 2006
Location: Chiapas, Mexico
Status: Offline
Points: 1942
Post Options Post Options   Thanks (0) Thanks(0)   Quote jethrocker Quote  Post ReplyReply Direct Link To This Post Posted: 19 December 2006 at 8:32pm
James.. is this meant to be funny? Are you laughing at us all? Throwing down the gauntlet of technical, theoretical speculations about the physics of the scoop.
Are you just trying to show the world that scoop lovers don't know what they're on about? Are you chuckling as you see your thread ignored by those too ignorant to take up the challenge?
 
No, probably not. Sorry.
Just that it seems noone wants to join you in any real technical discussion.
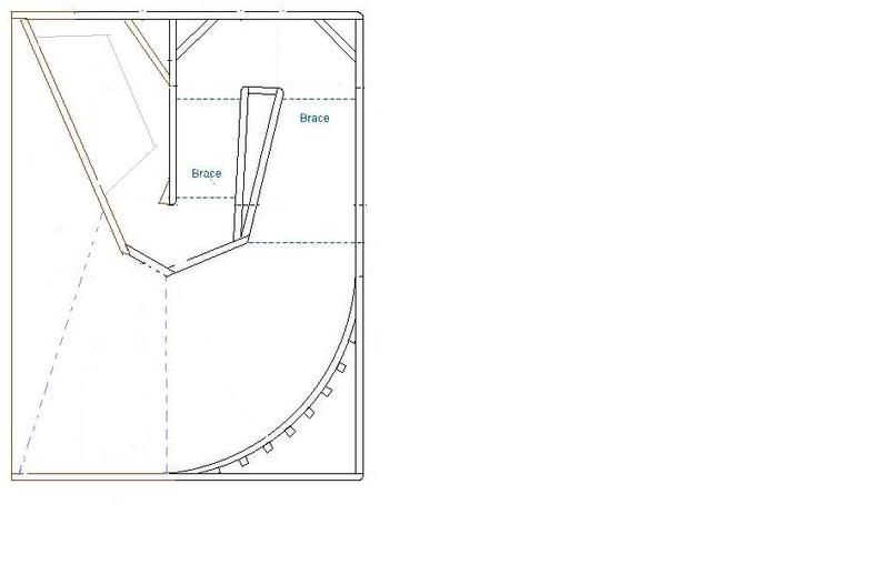
I was thinking about this though, just a bit, not straining myself or anything. Now, I'm still taking it all in here really, so this is based very much on partially educated speculation. I can't really comment on wether or not you're right about the TAP horn influence. I just wondered, if you're right, then could something like this  (click to enlarge) 
be a possible way to capitalise on the coupling of direct radiator/mouth, and give a larger effective mouth size to boot?
 
Staipers mini scoop uses a similarly sloping baffle, but I never saw this on a full size 18 loaded scoop.


Edited by jethrocker - 19 December 2006 at 8:33pm
Back to Top
moray james View Drop Down
Registered User
Registered User


Joined: 07 September 2005
Location: Canada
Status: Offline
Points: 141
Post Options Post Options   Thanks (0) Thanks(0)   Quote moray james Quote  Post ReplyReply Direct Link To This Post Posted: 20 December 2006 at 4:34am
Jethrocker: thanks for the reply. I am glad that you are thinkig about this too. I think that scoops do work and that a lot of people in the know like them very much. I don't know anywhere near what I would like to about this topic.  The horn length in the average scoop is (I am told) about 2.2 metres long which is an Fo of 39 Hz.  I asked Rog what he thought about mutual coupling between the mouth and the face of the driver (in a typical scoop), he said he did not believe that there was any such coupling.

    The cabinet that you posted is about as clean and and efficient of space as any I have ever seen. Once you start to fold the driver into the horn mouth you do increase the length and size and you also have to increase coupling between the two.  At a 1/4 wl of Fs this will behave like a TAP horn.  Your cabinet is worth a build to see and I would be most interested in the results. This design is about tha half way step toward the layout that Danley uses. One kind of design slowly morfs into another. Driver T/S also starts to change and Danley uses heavier cone units than would be seen in a typical scoop.

No dissing here just want to discuss the differences and the sometimes similar physical aspects of these designs. How else are you going to find out if you don't ask? Best regards Moray James.

moray james
Back to Top
Rog View Drop Down
New Member
New Member

Rogers Archive Posts

Joined: 23 March 2010
Status: Offline
Points: 2166
Post Options Post Options   Thanks (0) Thanks(0)   Quote Rog Quote  Post ReplyReply Direct Link To This Post Posted: 20 December 2006 at 5:31am
Looks like you plan would work Jethrocker.
 
The drivers rear to front path distance would be a little closer, which would raise the tuning a bit, but only by a few Hz so nothing to worry about. The second and good thing is that the mough is now larger. This would give the design more output. So a little louder and not quite so low, but its a worthwhile compromise if you ask me as your get more output and not really notice that its not playing quite as low. 
 
Someone build one.
 
Rog.
Back to Top
levyte357 View Drop Down
The 10,000 Points Club
The 10,000 Points Club


Joined: 10 May 2004
Location: UK, London
Status: Offline
Points: 11743
Post Options Post Options   Thanks (0) Thanks(0)   Quote levyte357 Quote  Post ReplyReply Direct Link To This Post Posted: 20 December 2006 at 9:39am
Originally posted by Rog Mogale Rog Mogale wrote:

Looks like you plan would work Jethrocker.

-- SNIP --

The second and good thing is that the mough is now larger. This would give the design more output. So a little louder and not quite so low,
 
Someone build one.
 
Rog.



Uneducated Guess; Would a larger rear chamber + high Xmax driver
lower the tuning of the cab?

What sort of dimensions (hornresp people), would be required for the
above design to have lower cutoff of 40hz ?
"Who am I? I'm the guy who does his job.. You must be the other guy".
Back to Top
hikk View Drop Down
Registered User
Registered User
Avatar

Joined: 05 February 2006
Location: Germany
Status: Offline
Points: 423
Post Options Post Options   Thanks (0) Thanks(0)   Quote hikk Quote  Post ReplyReply Direct Link To This Post Posted: 20 December 2006 at 2:53pm
What would happen to the sound if the space that joins the scoop part and or mouth to the rear chamber was made really small? Like force it through to meat a bibber chamber/mouth on the other side.....No speakers but i m thinking of what water or other matters do in the same situation?!!!
Back to Top
jethrocker View Drop Down
Old Croc
Old Croc


Joined: 07 June 2006
Location: Chiapas, Mexico
Status: Offline
Points: 1942
Post Options Post Options   Thanks (0) Thanks(0)   Quote jethrocker Quote  Post ReplyReply Direct Link To This Post Posted: 20 December 2006 at 8:46pm

@James, yep, I know you weren't dissing really. i was just having a laugh re: the general scoop related split in the community here:)

Have to say, I'm chuffed that even Rog thinks the idea might be worth a build. As I said, i'm learning and my knowledge is very limited. This wasn't a calculated design, just a thought on your TAP horn speculation. I just edited the superscoop drawing to give the idea. I think someone with more experience would have to play around with dimensions to get the throat area right etc. I'm just at the stage of using the basic formulas (yep-learning to design with paper and calculator-don't have a 'puter at home) and constantly finding myself frustrated because without either modelling software, years of experience or some serious prototype building I rarely really know if an idea would work (though the more I learn the more I'm realising that even for the most experienced designers who can predict the results of various adjustments to a design, there comes a point where you have to suck it to see).

Glad you mentioned the 1/4 wavelength thing. Was going to be my next question. Having played with some numbers earlier I was assuming that was what was going on.
I also sketched out another version, swapping the throat opening to the top of the driver compartment, allowing me to squeeze in another fold. This got the path length to around 2.5m, which is 1/4 wave of 34.4Hz. A bit lower.
Obviously, this means a bigger box (deeper) though not by too much. I also managed to use this layout to shorten the box to just under a meter tall, but still keeping the path length. This would give a more manageable box, say 950x950x650. Unfortunately though you then lose mouth size-though as the mouth is the full cab front it's probably still bigger than a standard scoop with the mouth terminated at the bottom of the baffle.
Back to Top
mobiele eenheid View Drop Down
Old Croc
Old Croc


Joined: 15 August 2004
Location: Netherlands
Status: Offline
Points: 1563
Post Options Post Options   Thanks (0) Thanks(0)   Quote mobiele eenheid Quote  Post ReplyReply Direct Link To This Post Posted: 21 December 2006 at 8:27am
Quote A straight 1/4 WL horn is is not efficient at low frequencies and horns in general don't get efficient until they reach 1/2 WL.  So if my assumption is wrong then what is the correct explaination for the bass performance of scoops?
I do imagine the air in front of the driver to move the path of least resistance, in case of a scoop the air in front of the cabinet close to the driver. Hybrides (between BLH and reflex) like the one posted above (or see Iven.nl) should do a bit better. The TAP/ Transflex doing quite well.
So in order of effciently coupling both sides to the horn: -- one side of driver coupled to horn --> scoop --> (Jethrocker bin -->) hybride --> TAP --> two sides of driver coupled to horn --
 
I also think the low flare rate of the TAP does add to the coupling as the horn area in front of the driver will be relatively small compared to Sd as it's like at the throat area.
The horn mouth from a scoop on the other hand is quite large compared to the driver, making it more difficult for the driver to get a grip on/ control the air inside the horn, as the area/ volume/ air approaches conditions that are more and more like the air surrounding the cabinet.
 
The bass performance of scoops is pretty much known territory is it not? (correct me if I'm wrong): Horn getting efficient at 1/2 WL and up, below this the influences of 1/4 WL resonance, front and rear chamber playing a more important role combined with the horn roll off directed by it's parameters.
 
Btw, with Fs your talking driver or horn?
 
Wkr Johan


Edited by mobiele eenheid - 21 December 2006 at 8:28am
Back to Top
moray james View Drop Down
Registered User
Registered User


Joined: 07 September 2005
Location: Canada
Status: Offline
Points: 141
Post Options Post Options   Thanks (0) Thanks(0)   Quote moray james Quote  Post ReplyReply Direct Link To This Post Posted: 21 December 2006 at 11:30am
Can you post a picture of these ideas? I would be interested in having a look at your folding arrangement. Miltiple folds will help baffle out mid information from reaching the mouth which is a good thing. Throat size could probably be reduced to equal Sd but I would want someone who can run a modle to confirm that but I think that it is ok to do.
   I was referring to driver Fs but I guess that for a TAP both driver Fs and horn flair would need to match (1/4 wave value).
   Wonder how high up in range do most people use thier scoops? What is a typical xover point? I ask as I know that Yourkville have a folded horn for a 15 " driver in  their "Unity" series and it has a 3 db down point of 37 Hz and 140 Hz. With 1000 watts in will give you 133 db out.  Size is very reasonable smaller than most of these scoops.  Sound quality of a scoop is obviously a major reason for the popularity. Regards Moray James.
moray james
Back to Top
 Post Reply Post Reply Page  123>

Forum Jump Forum Permissions View Drop Down

Forum Software by Web Wiz Forums® version 12.08
Copyright ©2001-2026 Web Wiz Ltd.